swtwater.com Home Page
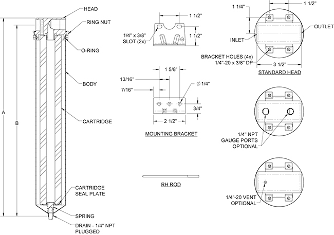
Stainless Steel Filter Housing Dimensions
(P/N YH22401 thru YH22503)
Product Information
In-Out Tank Head with Fill Port (P/N LC-D1220-01) Parts Drawing
 
Previous Page